In order to get students acquainted with Boston's housing types, students were tasked with creating a housing matrix that identifies. Students sorted dozens of buildings from the Fenway area into similar apartment types after making educated guesses about floor plans using google maps--elevator bump-outs and stair skylights were helpful indicators as to what occurred within each building.


Students then selected pre-existing buildings to fit onto the site of our future graduate student housing project. We compared these hodge-podge proposals to our previously completed double-loaded corridor schemes. Though the double-loaded corridor scheme is more space-efficient, the proposal comprised of Fenway buildings is more interesting and allows for a more varied social condition.

Fenway Scheme

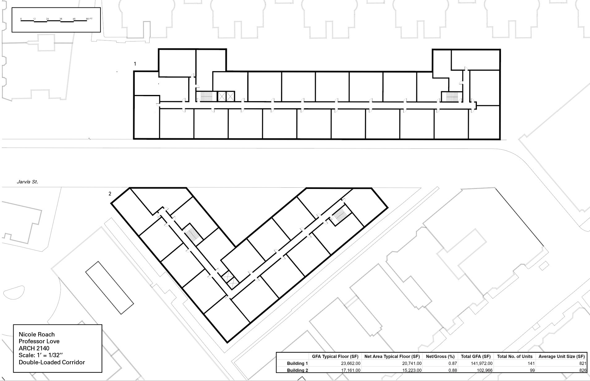
Double-Loaded Corridor Scheme