Void Space Housing is a daring project by Architect Steven Holl based on the idea of void space and hinging interior walls. The project, completed in Fukuoka, Japan in 1991, is comprised of four “active” north facing voids that are interlocked with four “quiet” south facing voids. To quote Steven Holl, this relationship represents “a sense of [bringing] the sacred into domestic life.”

Building Axon highlighting the south voids
Void Space Housing is one component of the Nexus World Housing complex, an urban housing experiment meant to evoke the 90's vision of future urbanism. The project consists of eleven separate developments each designed by one of six world-renowned architects.

Site Plan

Site Access Analysis
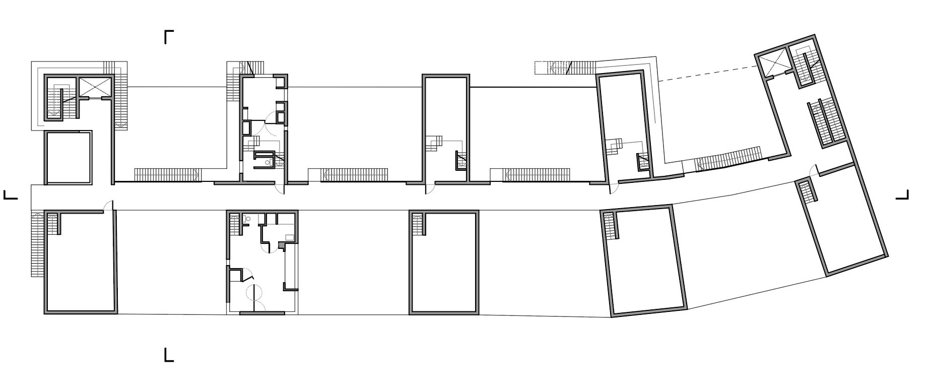
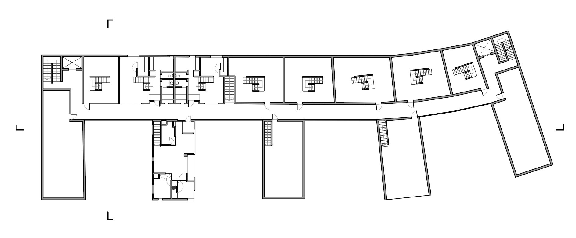
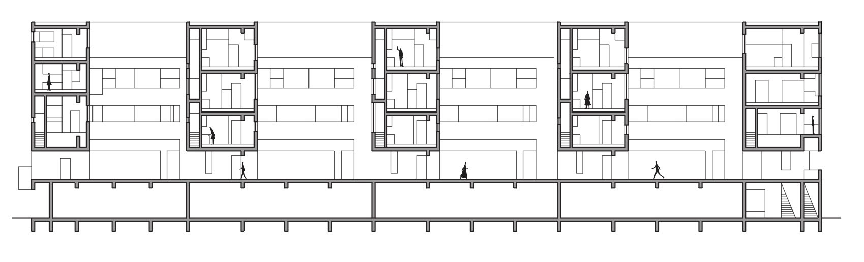
Nearly all units are multi-story, and they often cross above or below the floor’s main circulation such that each apartment has exposures from every direction. The corridor or main form of circulation differs on each floor, creating an interesting sectional interlocking and a variation in types of access points.

Ground Floor Plan

Second Floor Plan

Third Floor Plan

Fourth Floor Plan

Fifth Floor Plan

Section through the second floor corridor

Section through one of the southern voids
I created the analytical drawings below to help demonstrate perhaps the two most confusing aspects of the project: how one circulates the building and how the units align from floor to floor.

Unit Arrangement Diagram

Circulation Diagram
